









JH 105C 三軌斷橋推拉窗
產品特點
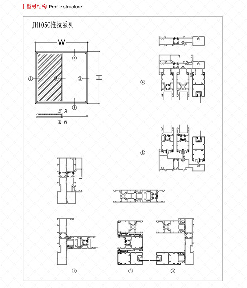
外框規格:105mm 開啟形式:推拉窗 型材厚度:窗1.4mm 五金配件:標配:格屋系統五金、進口好博執手 玻璃規格:5mm+9A+5mm 紗門類別:整體配套金剛網窗紗一體 最大尺寸范圍:總高度3500mm寬度不限,單扇寬1200mmx高1500mm
注:所有產品均可在門窗加盟店購買
主要應用
生產工藝:采用組角注膠工藝、T鏈接注膠工藝及五金夾持工藝,從整體道局部 全方位確保門窗100%防水; 安全性能:采用德國百年品牌格屋五金配件,結合多鎖點結構及防晃系統實現最好的安全性能; 隔音性能:采用19mm中空雙鋼化玻璃結合多道軟硬共擠密封膠條相配合,隔音量高達35分貝; 隔熱性能,采用多膠點結構,實現鋁材的絕對分離,并結合超寬進口隔熱膠條,實現熱傳導系數K值低達2.0W/㎡·K; 防水性能:高低軌排水系統及防風裝置相結合,讓排水更順暢,實現門窗水密性能500帕以上;
- 主要配置



